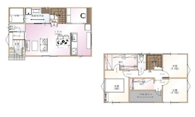
新築一戸建住宅
「利回り」は、当該不動産の1年間の予定賃料収入の不動産取得対価に対する割合であり、公租公課その他当該物件を維持するために必要な費用の控除前のものです。
また、予定賃料収入が確実に得られる事を保証するものではありません。

エスティケイ施工の新築戸建。南向き・2面採光で明るく、24時間換気・オール電化、長期優良住宅、フラット35/S適合・瑕疵保険基準適合で安心。

※地図上の物件位置は近隣に物件が所在することを表すものであり、実際の物件所在地とは異なる場合がございます。
0120-800-955
営業時間:10:00~18:00 / 定休日:水曜日
| 所在地 | 山梨県甲府市千塚4丁目 | ||
|---|---|---|---|
| 交通 |
中央線 「竜王」駅
徒歩46分 中央線 「甲府」駅 徒歩56分 中央線 「塩崎」駅 徒歩68分 |
||
| 価格 | 2,880万円 | ||
| 間取り |
3LDK
LDK 19.0帖 1室 / 洋室 6.0帖 1室 / 洋室 4.5帖 2室 / |
||
| 築年月(築年数) | 2025年 8月(新築) | 主要採光面 | 南 |
| 建物構造 | 木造 | 階数 | 2階建 |
| 私道負担面積 | セットバック | ||
| 接道状況 | 一方 (西側 公道6.0m) | ||
| 建ぺい率/容積率 | 60%/ 200% | 土地権利 | 所有権 |
| 地目 | 宅地 | 地勢 | 平坦 |
| 土地の権利形態 | |||
| 都市計画 | 市街化区域 | 用途地域 | 第一種中高層住居専用地域 |
| その他法令上の制限 | |||
| 国土法届出 | 不要 | 取引態様 | 仲介 |
| 現況 | 完成済み | 引渡し | 相談 |
| 駐車場 | 空き台数:2台 、 有 | ||
| 設備条件 | 公共下水 / 公営水道 / オール電化 / 24時間換気システム / 食器洗い乾燥機 / システムキッチン / オープンキッチン / 浴室乾燥機 / 温水洗浄便座 / トイレ2ヶ所 / エアコン / 床下収納 / ウォークインクロゼット / TVモニタ付インターホン | ||
| その他条件 | |||
| 備考 |
千塚小学校・北西中学校、学区。 |
||
| 周辺の学校 | 甲府市立千塚小学校(約1,029m / 徒歩13分) | ||
| 建築確認番号 | 第240990号 | 物件番号 | 100764558 |
| 情報公開日 | 2026年4月19日 | 次回更新予定日 | 2026年5月3日 |
| 取引条件の有効期限 | 2026年5月3日 | ||
| 取扱い会社 |
LIXIL不動産ショップ 株式会社プライムホーム 〒400-0047 山梨県甲府市徳行3丁目4-24 山梨県知事(3)第2321号 (公社)山梨県宅地建物取引業協会(公社)全国宅地建物取引業保証協会(公社)首都圏不動産公正取引協議会 |
||
0120-800-955
営業時間:10:00~18:00 / 定休日:水曜日
| 所在地 | 物件の住所を表示。(詳細住所は表示していない場合もある) | ||
|---|---|---|---|
| 交通 | 物件(部屋)の沿線駅・バス停を表示。(複数駅・バス停の利用が可能な場合は最大3件まで) | ||
| 間取り/詳細 | 数字は居室数を表示。LDKはそれぞれ「リビング」「ダイニング」「キッチン」、S(納戸)とは「納戸」「サービスルーム」「マルチルーム」「フリールーム」など建築基準法第28条に適合していないため、居室と認められない納戸その他の部分を表す。 | ||
| 価格 | 販売されている住戸の価格を表示。仲介手数料は含まない。 | ||
| 管理費 | 共同住宅の設備その他共用部分の維持および管理をするために必要な費用を表示。 | ||
| 修繕積立金 | 共用部分の修繕のために積立てる金額を表示。 | ||

中古一戸建住宅
| 価格 |
値下げ:2025/09/06 2,580 万円 | ||
|---|---|---|---|
| 間取り | 3LDK | 築年月(築年数) | 1986年 11月 (築39年) |
| 建物面積 | 141.69㎡ | 土地面積 | 179.23㎡ |
| 住所 | 山梨県甲府市古府中町 | ||
| 交通 |
中央線「甲府」駅 徒歩33分
|
||
中古一戸建住宅
| 価格 | 2,700 万円 | ||
|---|---|---|---|
| 間取り | 3LDK | 築年月(築年数) | 1980年 1月 (築46年) |
| 建物面積 | 165.80㎡ | 土地面積 | 252.88㎡ |
| 住所 | 山梨県甲府市下曽根町 | ||
| 交通 |
身延線「東花輪」駅 徒歩69分
|
||
新築一戸建住宅
| 価格 | 2,780 万円 | ||
|---|---|---|---|
| 間取り | 3LDK | 築年月(築年数) | 2025年 12月 (新築) |
| 建物面積 | 93.57㎡ | 土地面積 | 93.57㎡ |
| 住所 | 山梨県甲府市大里町 | ||
| 交通 |
身延線「国母」駅 徒歩36分 身延線「甲斐住吉」駅 徒歩42分 身延線「常永」駅 徒歩49分 |
||
中古一戸建住宅
| 価格 | 2,940 万円 | ||
|---|---|---|---|
| 間取り | 3LDK | 築年月(築年数) | 2023年 12月 (築2年) |
| 建物面積 | 91.09㎡ | 土地面積 | 181.58㎡ |
| 住所 | 山梨県甲府市山宮町 | ||
| 交通 |
中央線「竜王」駅 徒歩43分 中央線「塩崎」駅 徒歩64分 中央線「甲府」駅 徒歩63分 |
||
中古一戸建住宅
| 価格 |
値下げ:2024/10/19 3,250 万円 | ||
|---|---|---|---|
| 間取り | 3LDK | 築年月(築年数) | 2004年 2月 (築22年) |
| 建物面積 | 265.24㎡ | 土地面積 | 275.54㎡ |
| 住所 | 山梨県甲府市上石田3丁目 | ||
| 交通 |
中央線「甲府」駅 徒歩38分
|
||
【その他】