新築一戸建住宅
「利回り」は、当該不動産の1年間の予定賃料収入の不動産取得対価に対する割合であり、公租公課その他当該物件を維持するために必要な費用の控除前のものです。
また、予定賃料収入が確実に得られる事を保証するものではありません。

閑静な住宅地に建つデザイナーズ住宅で、落ち着いた住環境が魅力です。浴室は1坪タイプでゆったり入浴でき、トイレは2ヶ所あり家族でも快適に使えます。オール電化+太陽光発電搭載で光熱費を抑えられ、駐車場は3台分確保された利便性の高い住まいです。

※地図上の物件位置は近隣に物件が所在することを表すものであり、実際の物件所在地とは異なる場合がございます。
0120-800-955
営業時間:10:00~18:00 / 定休日:水曜日
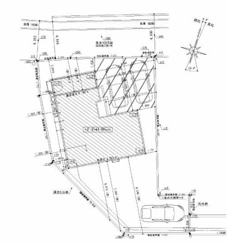
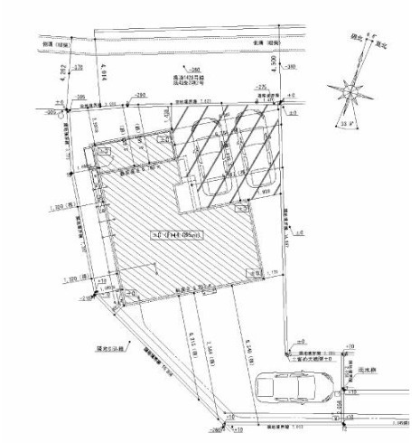
| 所在地 | 山梨県甲府市中町 | ||
|---|---|---|---|
| 交通 |
身延線 「甲斐住吉」駅
徒歩29分 身延線 「国母」駅 徒歩43分 身延線 「南甲府」駅 徒歩49分 |
||
| 価格 | 3,500万円 | ||
| 間取り |
4LDK
LDK 18.5帖 1室 / 洋室 4.4帖 1室 / 洋室 6.8帖 1室 / 洋室 4.1帖 2室 / |
||
| 築年月(築年数) | 2026年 6月予定(建築中) | 主要採光面 | 南 |
| 建物構造 | 木造 | 階数 | 2階建 |
| 私道負担面積 | セットバック | ||
| 接道状況 | 角地 (東側 公道6.0m) (北側 公道4.0m) | ||
| 建ぺい率/容積率 | 60%/ 200% | 土地権利 | 所有権 |
| 地目 | 宅地 | 地勢 | |
| 土地の権利形態 | |||
| 都市計画 | 市街化調整区域 | 用途地域 | 指定なし |
| その他法令上の制限 | |||
| 国土法届出 | 不要 | 取引態様 | 仲介 |
| 現況 | 未完成 | 引渡し | 相談 |
| 駐車場 | 空き台数:3台 、 有 | ||
| 設備条件 | 公共下水 / 公営水道 / 閑静な住宅地 / 防犯カメラ / デザイナーズ / フローリング / オール電化 / 24時間換気システム / IHクッキングヒーター / 食器洗い乾燥機 / システムキッチン / 追焚機能浴室 / 浴室乾燥機 / 温水洗浄便座 / トイレ2ヶ所 / 浴室1坪以上 / 床下収納 / 収納豊富 / TVモニタ付インターホン / 複層ガラス | ||
| その他条件 | |||
| 備考 |
山城小学校・城南中学校、学区。 BELS/省エネ基準適合認定 太陽光5kw搭載 |
||
| 周辺の学校 | 甲府市立城南中学校(約1,429m / 徒歩18分)、 甲府市立山城小学校(約1,658m / 徒歩21分) | ||
| 建築確認番号 | 第日住評確第25190493号 | 物件番号 | 102799758 |
| 情報公開日 | 2026年4月19日 | 次回更新予定日 | 2026年5月3日 |
| 取引条件の有効期限 | 2026年5月3日 | ||
| 取扱い会社 |
LIXIL不動産ショップ 株式会社プライムホーム 〒400-0047 山梨県甲府市徳行3丁目4-24 山梨県知事(3)第2321号 (公社)山梨県宅地建物取引業協会(公社)全国宅地建物取引業保証協会(公社)首都圏不動産公正取引協議会 |
||
0120-800-955
営業時間:10:00~18:00 / 定休日:水曜日
| 所在地 | 物件の住所を表示。(詳細住所は表示していない場合もある) | ||
|---|---|---|---|
| 交通 | 物件(部屋)の沿線駅・バス停を表示。(複数駅・バス停の利用が可能な場合は最大3件まで) | ||
| 間取り/詳細 | 数字は居室数を表示。LDKはそれぞれ「リビング」「ダイニング」「キッチン」、S(納戸)とは「納戸」「サービスルーム」「マルチルーム」「フリールーム」など建築基準法第28条に適合していないため、居室と認められない納戸その他の部分を表す。 | ||
| 価格 | 販売されている住戸の価格を表示。仲介手数料は含まない。 | ||
| 管理費 | 共同住宅の設備その他共用部分の維持および管理をするために必要な費用を表示。 | ||
| 修繕積立金 | 共用部分の修繕のために積立てる金額を表示。 | ||

新築一戸建住宅
| 価格 | 3,090 万円 | ||
|---|---|---|---|
| 間取り | 4LDK | 築年月(築年数) | 2026年 5月予定 (建築中) |
| 建物面積 | 113.65㎡ | 土地面積 | 225.62㎡ |
| 住所 | 山梨県甲府市羽黒町 | ||
| 交通 |
中央線「竜王」駅 徒歩61分 中央線「甲府」駅 徒歩57分 身延線「金手」駅 徒歩71分 |
||
中古一戸建住宅
| 価格 |
値下げ:2025/11/16 3,230 万円 | ||
|---|---|---|---|
| 間取り | 4LDK | 築年月(築年数) | 2024年 10月 (築1年) |
| 建物面積 | 97.92㎡ | 土地面積 | 272.63㎡ |
| 住所 | 山梨県甲府市池田1丁目 | ||
| 交通 |
中央線「竜王」駅 徒歩40分 中央線「甲府」駅 徒歩34分 身延線「金手」駅 徒歩48分 |
||
中古一戸建住宅
| 価格 |
値下げ:2024/09/24 3,250 万円 | ||
|---|---|---|---|
| 間取り | 4LDK | 築年月(築年数) | 2003年 12月 (築22年) |
| 建物面積 | 162.30㎡ | 土地面積 | 778.90㎡ |
| 住所 | 山梨県甲府市住吉1丁目 | ||
| 交通 |
身延線「甲斐住吉」駅 徒歩7分 身延線「南甲府」駅 徒歩9分
|
||
中古一戸建住宅
| 価格 |
値下げ:2026/01/09 3,250 万円 | ||
|---|---|---|---|
| 間取り | 4LDK | 築年月(築年数) | 2018年 8月 (築7年) |
| 建物面積 | 109.63㎡ | 土地面積 | 201.68㎡ |
| 住所 | 山梨県甲府市上今井町 | ||
| 交通 |
身延線「甲斐住吉」駅 徒歩23分
|
||
中古一戸建住宅
| 価格 | 3,500 万円 | ||
|---|---|---|---|
| 間取り | 4LDK | 築年月(築年数) | 2015年 1月 (築11年) |
| 建物面積 | 114.27㎡ | 土地面積 | 241.68㎡ |
| 住所 | 山梨県甲府市国母3丁目 | ||
| 交通 |
身延線「国母」駅 徒歩20分 身延線「甲斐住吉」駅 徒歩25分 中央線「甲府」駅 徒歩46分 |
||
【外観パース】完成予想図