新築一戸建住宅
「利回り」は、当該不動産の1年間の予定賃料収入の不動産取得対価に対する割合であり、公租公課その他当該物件を維持するために必要な費用の控除前のものです。
また、予定賃料収入が確実に得られる事を保証するものではありません。

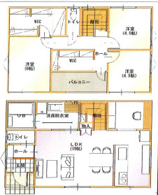
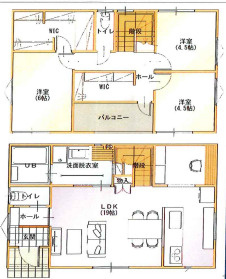
長期優良住宅のため耐震性・省エネ性に優れ、安心して長く暮らせる新築住宅です。LDKは広々19.0帖で開放感があり、家族団らんの時間を演出。ウォークインクローゼット2箇所とトイレ2箇所を備え、収納力と生活利便性も充実しています。

※地図上の物件位置は近隣に物件が所在することを表すものであり、実際の物件所在地とは異なる場合がございます。
0120-800-955
営業時間:10:00~18:00 / 定休日:水曜日
| 所在地 | 山梨県山梨市大野 727-7 | ||
|---|---|---|---|
| 交通 |
中央線 「山梨市」駅
徒歩23分 中央線 「春日居町」駅 徒歩27分 中央線 「東山梨」駅 徒歩47分 |
||
| 価格 | 2,880万円 | ||
| 間取り |
3LDK
LDK 19.0帖 1室 / 洋室 6.0帖 1室 / 洋室 4.5帖 2室 / |
||
| 築年月(築年数) | 2025年 10月(新築) | 主要採光面 | |
| 建物構造 | 木造 | 階数 | 2階建 |
| 私道負担面積 | セットバック | ||
| 接道状況 | 一方 (西側 公道6.0m) | ||
| 建ぺい率/容積率 | 70%/ 200% | 土地権利 | 所有権 |
| 地目 | 宅地 | 地勢 | |
| 土地の権利形態 | |||
| 都市計画 | 非線引区域 | 用途地域 | 指定なし |
| その他法令上の制限 | 景観法 | ||
| 国土法届出 | 不要 | 取引態様 | 仲介 |
| 現況 | 完成済み | 引渡し | 相談 |
| 駐車場 | |||
| 設備条件 | 公共下水 / 公営水道 / プロパンガス / バルコニー / トイレ2ヶ所 | ||
| その他条件 | |||
| 備考 | 加納岩小学校・山梨南中学校、学区。 | ||
| 周辺の学校 | |||
| 建築確認番号 | 第250117号 | 物件番号 | 100764659 |
| 情報公開日 | 2026年2月9日 | 次回更新予定日 | 2026年2月23日 |
| 取引条件の有効期限 | 2026年2月23日 | ||
| 取扱い会社 |
LIXIL不動産ショップ 株式会社プライムホーム 〒400-0047 山梨県甲府市徳行3丁目4-24 山梨県知事(3)第2321号 (公社)山梨県宅地建物取引業協会(公社)全国宅地建物取引業保証協会(公社)首都圏不動産公正取引協議会 |
||
0120-800-955
営業時間:10:00~18:00 / 定休日:水曜日
| 所在地 | 物件の住所を表示。(詳細住所は表示していない場合もある) | ||
|---|---|---|---|
| 交通 | 物件(部屋)の沿線駅・バス停を表示。(複数駅・バス停の利用が可能な場合は最大3件まで) | ||
| 間取り/詳細 | 数字は居室数を表示。LDKはそれぞれ「リビング」「ダイニング」「キッチン」、S(納戸)とは「納戸」「サービスルーム」「マルチルーム」「フリールーム」など建築基準法第28条に適合していないため、居室と認められない納戸その他の部分を表す。 | ||
| 価格 | 販売されている住戸の価格を表示。仲介手数料は含まない。 | ||
| 管理費 | 共同住宅の設備その他共用部分の維持および管理をするために必要な費用を表示。 | ||
| 修繕積立金 | 共用部分の修繕のために積立てる金額を表示。 | ||

【外観】