中古一戸建住宅
「利回り」は、当該不動産の1年間の予定賃料収入の不動産取得対価に対する割合であり、公租公課その他当該物件を維持するために必要な費用の控除前のものです。
また、予定賃料収入が確実に得られる事を保証するものではありません。

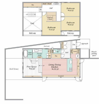
木の温もりを感じられるデザイナーズ住宅。住まいは安心のオール電化仕様。角地に位置し、敷地面積は約77坪と広々。収納も豊富で、ライフスタイルに合わせて使いやすい間取りになっています。

※地図上の物件位置は近隣に物件が所在することを表すものであり、実際の物件所在地とは異なる場合がございます。
0120-800-955
営業時間:10:00~18:00 / 定休日:水曜日
| 所在地 | 山梨県南アルプス市藤田 | ||
|---|---|---|---|
| 交通 |
身延線 「東花輪」駅
徒歩35分 身延線 「小井川」駅 徒歩49分 身延線 「常永」駅 徒歩62分 |
||
| 価格 | 2,180万円 | ||
| 間取り |
3LDK
LDK 16.3帖 1室 / 洋室 6.0帖 3室 / |
||
| 築年月(築年数) | 2009年 7月(築16年) | 主要採光面 | |
| 建物構造 | 木造 | 階数 | 2階建 |
| 私道負担面積 | セットバック | ||
| 接道状況 | 角地 (北側 公道6.0m) (西側 公道4.9m) | ||
| 建ぺい率/容積率 | 70%/ 200% | 土地権利 | 所有権 |
| 地目 | 宅地 | 地勢 | 平坦 |
| 土地の権利形態 | |||
| 都市計画 | 非線引区域 | 用途地域 | 指定なし |
| その他法令上の制限 | |||
| 国土法届出 | 不要 | 取引態様 | 仲介 |
| 現況 | 居住中 | 引渡し | 相談 |
| リフォーム | |||
| 駐車場 | 空き台数:3台 、 有 | ||
| 設備条件 | 公営水道 / 閑静な住宅地 / デザイナーズ / オール電化 / IHクッキングヒーター / システムキッチン / バス・トイレ別 / 温水洗浄便座 / ウォークインクロゼット / 収納豊富 / TVモニタ付インターホン | ||
| その他条件 | |||
| 備考 |
若草南小学校・若草中学校、学区。 売主の契約不適合責任の免責、境界非明示、現況有姿売買、その他要相談。 |
||
| 周辺の学校 | 南アルプス市立若草南小学校(約934m / 徒歩12分) | ||
| 物件番号 | 99412628 | ||
| 情報公開日 | 2026年4月11日 | 次回更新予定日 | 2026年4月25日 |
| 取引条件の有効期限 | 2026年4月25日 | ||
| 取扱い会社 |
LIXIL不動産ショップ 株式会社プライムホーム 〒400-0047 山梨県甲府市徳行3丁目4-24 山梨県知事(3)第2321号 (公社)山梨県宅地建物取引業協会(公社)全国宅地建物取引業保証協会(公社)首都圏不動産公正取引協議会 |
||
0120-800-955
営業時間:10:00~18:00 / 定休日:水曜日
| 所在地 | 物件の住所を表示。(詳細住所は表示していない場合もある) | ||
|---|---|---|---|
| 交通 | 物件(部屋)の沿線駅・バス停を表示。(複数駅・バス停の利用が可能な場合は最大3件まで) | ||
| 間取り/詳細 | 数字は居室数を表示。LDKはそれぞれ「リビング」「ダイニング」「キッチン」、S(納戸)とは「納戸」「サービスルーム」「マルチルーム」「フリールーム」など建築基準法第28条に適合していないため、居室と認められない納戸その他の部分を表す。 | ||
| 価格 | 販売されている住戸の価格を表示。仲介手数料は含まない。 | ||
| 管理費 | 共同住宅の設備その他共用部分の維持および管理をするために必要な費用を表示。 | ||
| 修繕積立金 | 共用部分の修繕のために積立てる金額を表示。 | ||

中古一戸建住宅
| 価格 | 2,285 万円 | ||
|---|---|---|---|
| 間取り | 3LDK | 築年月(築年数) | 2022年 4月 (築4年) |
| 建物面積 | 79.49㎡ | 土地面積 | 223.80㎡ |
| 住所 | 山梨県南アルプス市有野 | ||
| 交通 |
中央線「塩崎」駅 徒歩69分
|
||
中古一戸建住宅
| 価格 | 2,380 万円 | ||
|---|---|---|---|
| 間取り | 3LDK | 築年月(築年数) | 2009年 8月 (築16年) |
| 建物面積 | 97.99㎡ | 土地面積 | 280.86㎡ |
| 住所 | 山梨県南アルプス市下宮地 | ||
| 交通 |
身延線「東花輪」駅 徒歩73分 身延線「小井川」駅 徒歩78分 身延線「市川大門」駅 徒歩86分 |
||
【外観】