中古一戸建住宅
「利回り」は、当該不動産の1年間の予定賃料収入の不動産取得対価に対する割合であり、公租公課その他当該物件を維持するために必要な費用の控除前のものです。
また、予定賃料収入が確実に得られる事を保証するものではありません。

土地229坪の広い敷地に建つ中古戸建で、二世帯住宅にもおすすめ。陽当り・通風良好で富士山を望む魅力の立地。角地の開放感に加え、WICやパントリーなど収納充実。1坪以上の浴室や追焚機能も備えた快適な住まいです。

※地図上の物件位置は近隣に物件が所在することを表すものであり、実際の物件所在地とは異なる場合がございます。
0120-800-955
営業時間:10:00~18:00 / 定休日:水曜日
| 所在地 | 山梨県南アルプス市飯野 | ||
|---|---|---|---|
| 交通 |
中央線 「塩崎」駅
徒歩93分 中央線 「竜王」駅 徒歩99分 中央線 「韮崎」駅 徒歩99分 |
||
| 価格 | 3,300万円 | ||
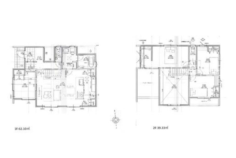
| 間取り |
4LDK
LDK 17.8帖 1室 / 和室 6.0帖 1室 / 洋室 8.7帖 1室 / 洋室 5.2帖 2室 / |
||
| 築年月(築年数) | 2004年 4月(築22年) | 主要採光面 | |
| 建物構造 | 木造 | 階数 | 2階建 |
| 私道負担面積 | セットバック | ||
| 接道状況 | 角地 (西側 公道4.3m) (南側 公道2.4m) | ||
| 建ぺい率/容積率 | 70%/ 200% | 土地権利 | 所有権 |
| 地目 | 宅地 | 地勢 | |
| 土地の権利形態 | |||
| 都市計画 | 非線引区域 | 用途地域 | 指定なし |
| その他法令上の制限 | |||
| 国土法届出 | 不要 | 取引態様 | 専任媒介 |
| 現況 | 空家 | 引渡し | 相談 |
| リフォーム | |||
| 駐車場 | 空き台数:4台 、 有 | ||
| 設備条件 | 陽当り良好 / 眺望良好 / フローリング / 出窓 / 食器洗い乾燥機 / システムキッチン / カウンターキッチン / バス・トイレ別 / 追焚機能浴室 / トイレ2ヶ所 / 浴室1坪以上 / 独立洗面台 / ウォークインクロゼット | ||
| その他条件 | |||
| 備考 |
白根飯野小学校・白根巨摩中学校、学区。 【別棟情報】構造:木造かわらぶき2階建 建物面積:163.17㎡ 築年月:昭和58年12月 間取り:5DK |
||
| 周辺の学校 | 南アルプス市立白根飯野小学校(約626m / 徒歩8分) | ||
| 物件番号 | 99801809 | ||
| 情報公開日 | 2026年4月19日 | 次回更新予定日 | 2026年5月3日 |
| 取引条件の有効期限 | 2026年5月3日 | ||
| 取扱い会社 |
LIXIL不動産ショップ 株式会社プライムホーム 〒400-0047 山梨県甲府市徳行3丁目4-24 山梨県知事(3)第2321号 (公社)山梨県宅地建物取引業協会(公社)全国宅地建物取引業保証協会(公社)首都圏不動産公正取引協議会 |
||
0120-800-955
営業時間:10:00~18:00 / 定休日:水曜日
| 所在地 | 物件の住所を表示。(詳細住所は表示していない場合もある) | ||
|---|---|---|---|
| 交通 | 物件(部屋)の沿線駅・バス停を表示。(複数駅・バス停の利用が可能な場合は最大3件まで) | ||
| 間取り/詳細 | 数字は居室数を表示。LDKはそれぞれ「リビング」「ダイニング」「キッチン」、S(納戸)とは「納戸」「サービスルーム」「マルチルーム」「フリールーム」など建築基準法第28条に適合していないため、居室と認められない納戸その他の部分を表す。 | ||
| 価格 | 販売されている住戸の価格を表示。仲介手数料は含まない。 | ||
| 管理費 | 共同住宅の設備その他共用部分の維持および管理をするために必要な費用を表示。 | ||
| 修繕積立金 | 共用部分の修繕のために積立てる金額を表示。 | ||

中古一戸建住宅
| 価格 | 3,050 万円 | ||
|---|---|---|---|
| 間取り | 4LDK | 築年月(築年数) | 2018年 12月 (築7年) |
| 建物面積 | 130.00㎡ | 土地面積 | 329.49㎡ |
| 住所 | 山梨県南アルプス市寺部 | ||
| 交通 |
身延線「小井川」駅 徒歩53分
|
||
新築一戸建住宅
| 価格 | 3,180 万円 | ||
|---|---|---|---|
| 間取り | 4LDK | 築年月(築年数) | 2025年 9月 (新築) |
| 建物面積 | 116.75㎡ | 土地面積 | 264.36㎡ |
| 住所 | 山梨県南アルプス市山寺 | ||
| 交通 |
身延線「東花輪」駅 徒歩94分 身延線「小井川」駅 徒歩94分 身延線「市川大門」駅 徒歩99分 |
||
中古一戸建住宅
| 価格 | 3,280 万円 | ||
|---|---|---|---|
| 間取り | 4LDK | 築年月(築年数) | 2023年 1月 (築3年) |
| 建物面積 | 110.02㎡ | 土地面積 | 271.02㎡ |
| 住所 | 山梨県南アルプス市山寺 | ||
| 交通 |
身延線「市川大門」駅 徒歩95分
|
||
中古一戸建住宅
| 価格 | 3,480 万円 | ||
|---|---|---|---|
| 間取り | 4LDK | 築年月(築年数) | 2021年 4月 (築5年) |
| 建物面積 | 101.43㎡ | 土地面積 | 229.82㎡ |
| 住所 | 山梨県南アルプス市在家塚 | ||
| 交通 |
中央線「塩崎」駅 徒歩87分
|
||
【外観】