中古一戸建住宅
| 価格 |
値下げ:2024/03/15 3,380万円 | 交通 | 中央線 「竜王」駅 徒歩18分 |
|---|---|---|---|
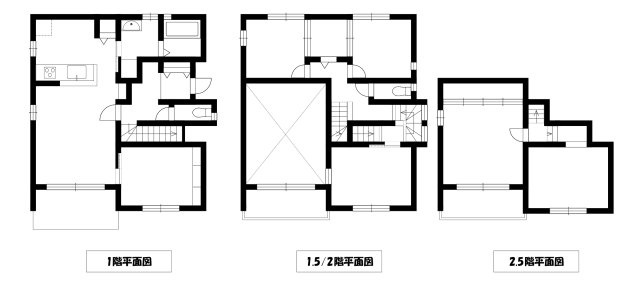
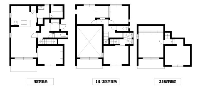
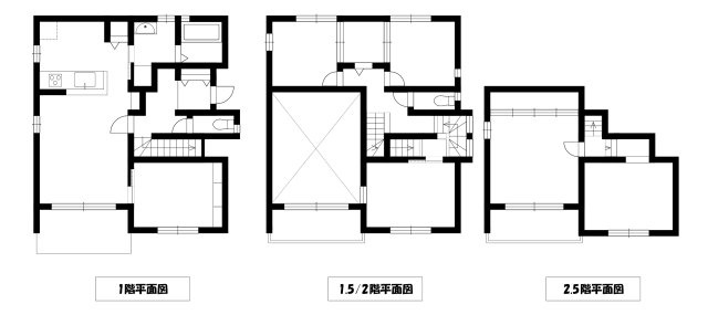
| 間取り | 5LDK | 所在地 | 山梨県甲斐市大下条 |
| 建物面積/坪数 | 113.02㎡ / 34.18坪 | 土地面積/坪数 | 229.29㎡ / 69.35坪 |
「利回り」は、当該不動産の1年間の予定賃料収入の不動産取得対価に対する割合であり、公租公課その他当該物件を維持するために必要な費用の控除前のものです。
また、予定賃料収入が確実に得られる事を保証するものではありません。

閑静な住宅街の5LDKの物件♪太陽光発電システム付きで設備充実!駐車場3台分。ファミリーマート 敷島松島団地店まで徒歩9分。

※地図上の物件位置は近隣に物件が所在することを表すものであり、実際の物件所在地とは異なる場合がございます。
0120-800-955
営業時間:10:00~18:00 / 定休日:水曜日
| 所在地 | 山梨県甲斐市大下条 | ||
|---|---|---|---|
| 交通 | 中央線 「竜王」駅 徒歩18分 | ||
| 価格 | 3,380万円 | ||
| 間取り |
5LDK
LDK 16.0帖 1室 / 洋室 8.0帖 1室 / 洋室 6.0帖 2室 / 洋室 4.5帖 2室 / |
||
| 築年月(築年数) | 2016年 2月(築9年) | 主要採光面 | 南東 |
| 建物構造 | 木造 | 階数 | 2階建 |
| 私道負担面積 | セットバック | ||
| 接道状況 | 一方 (北西側4.5m) | ||
| 建ぺい率/容積率 | 60%/ 200% | 土地権利 | 所有権 |
| 地目 | 宅地 | 地勢 | 平坦 |
| 土地の権利形態 | |||
| 都市計画 | 市街化区域 | 用途地域 | 第一種中高層住居専用地域 |
| その他法令上の制限 | |||
| 国土法届出 | 不要 | 取引態様 | 仲介 |
| 現況 | 居住中 | 引渡し | 相談 |
| リフォーム | |||
| 駐車場 | 空き台数:3台 、 有 | ||
| 設備条件 | 公共下水 / 公営水道 / 建設住宅性能評価書付 / 24時間換気システム / 照明器具付き / IHクッキングヒーター / 食器洗い乾燥機 / 浴室乾燥機 / 温水洗浄便座 / 浴室1坪以上 / 床下収納 / 複層ガラス | ||
| その他条件 | |||
| 備考 | 敷島南小学校・敷島中学校、学区。 | ||
| 周辺の学校 | 甲斐市立敷島南小学校(約1,256m / 徒歩16分)、甲斐市立敷島中学校(約1,913m / 徒歩24分) | ||
| 物件番号 | 84249899 | ||
| 情報公開日 | 2025年12月7日 | 次回更新予定日 | 2025年12月21日 |
| 取引条件の有効期限 | 2025年12月21日 | ||
| 取扱い会社 |
LIXIL不動産ショップ 株式会社プライムホーム 〒400-0047 山梨県甲府市徳行3丁目4-24 山梨県知事(3)第2321号 (公社)山梨県宅地建物取引業協会(公社)全国宅地建物取引業保証協会(公社)首都圏不動産公正取引協議会 |
||
0120-800-955
営業時間:10:00~18:00 / 定休日:水曜日
| 所在地 | 物件の住所を表示。(詳細住所は表示していない場合もある) | ||
|---|---|---|---|
| 交通 | 物件(部屋)の沿線駅・バス停を表示。(複数駅・バス停の利用が可能な場合は最大3件まで) | ||
| 間取り/詳細 | 数字は居室数を表示。LDKはそれぞれ「リビング」「ダイニング」「キッチン」、S(納戸)とは「納戸」「サービスルーム」「マルチルーム」「フリールーム」など建築基準法第28条に適合していないため、居室と認められない納戸その他の部分を表す。 | ||
| 価格 | 販売されている住戸の価格を表示。仲介手数料は含まない。 | ||
| 管理費 | 共同住宅の設備その他共用部分の維持および管理をするために必要な費用を表示。 | ||
| 修繕積立金 | 共用部分の修繕のために積立てる金額を表示。 | ||

【外観】