新築一戸建住宅
「利回り」は、当該不動産の1年間の予定賃料収入の不動産取得対価に対する割合であり、公租公課その他当該物件を維持するために必要な費用の控除前のものです。
また、予定賃料収入が確実に得られる事を保証するものではありません。

―光と風と快適が調和する、次世代のスマートライフをあなたにー
タカラスタンダードの高品質キッチンは、毎日の料理を特別な時間に変える、まさに家族の中心。そして、家全体を常に快適に保つ全館空調システム。高気密・高断熱の確かな性能が、光熱費を抑えながら、理想の暮らしを実現します。

※地図上の物件位置は近隣に物件が所在することを表すものであり、実際の物件所在地とは異なる場合がございます。
0120-800-955
営業時間:10:00~18:00 / 定休日:水曜日
| 所在地 | 山梨県甲斐市西八幡 | ||
|---|---|---|---|
| 交通 |
中央線 「竜王」駅
徒歩39分 身延線 「国母」駅 徒歩44分 身延線 「常永」駅 徒歩50分 |
||
| 価格 | 3,460万円 | ||
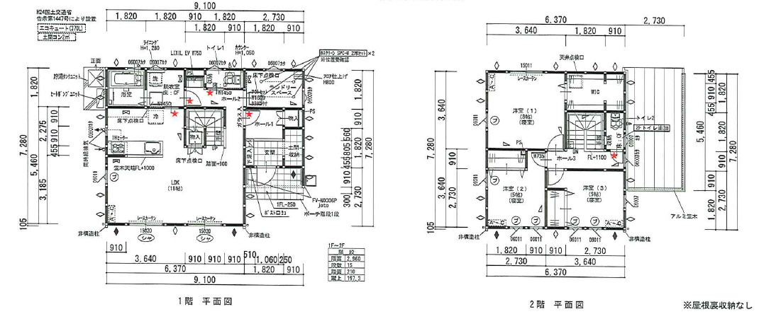
| 間取り |
3LDK
|
||
| 築年月(築年数) | 2026年 3月予定(建築中) | 主要採光面 | |
| 建物構造 | 木造 | 階数 | 2階建 |
| 私道負担面積 | セットバック | ||
| 接道状況 | |||
| 建ぺい率/容積率 | 60%/ 174% | 土地権利 | 所有権 |
| 地目 | 宅地 | 地勢 | |
| 土地の権利形態 | |||
| 都市計画 | 市街化区域 | 用途地域 | 第一種住居地域 |
| その他法令上の制限 | |||
| 国土法届出 | 不要 | 取引態様 | 仲介 |
| 現況 | 未完成 | 引渡し | 相談 |
| 駐車場 | |||
| 設備条件 | 公共下水 / 公営水道 / IHクッキングヒーター / システムキッチン / トイレ2ヶ所 / ウォークインクロゼット / TVモニタ付インターホン | ||
| その他条件 | |||
| 備考 |
玉幡小学校・玉幡中学校、学区。 |
||
| 周辺の学校 | 甲斐市立玉幡小学校(約1,595m / 徒歩20分)、 甲斐市立玉幡中学校(約1,672m / 徒歩21分) | ||
| 建築確認番号 | 第2025確認建築静建住ま07461号 | 物件番号 | 100456475 |
| 情報公開日 | 2026年2月10日 | 次回更新予定日 | 2026年2月23日 |
| 取引条件の有効期限 | 2026年2月23日 | ||
| 取扱い会社 |
LIXIL不動産ショップ 株式会社プライムホーム 〒400-0047 山梨県甲府市徳行3丁目4-24 山梨県知事(3)第2321号 (公社)山梨県宅地建物取引業協会(公社)全国宅地建物取引業保証協会(公社)首都圏不動産公正取引協議会 |
||
0120-800-955
営業時間:10:00~18:00 / 定休日:水曜日
| 所在地 | 物件の住所を表示。(詳細住所は表示していない場合もある) | ||
|---|---|---|---|
| 交通 | 物件(部屋)の沿線駅・バス停を表示。(複数駅・バス停の利用が可能な場合は最大3件まで) | ||
| 間取り/詳細 | 数字は居室数を表示。LDKはそれぞれ「リビング」「ダイニング」「キッチン」、S(納戸)とは「納戸」「サービスルーム」「マルチルーム」「フリールーム」など建築基準法第28条に適合していないため、居室と認められない納戸その他の部分を表す。 | ||
| 価格 | 販売されている住戸の価格を表示。仲介手数料は含まない。 | ||
| 管理費 | 共同住宅の設備その他共用部分の維持および管理をするために必要な費用を表示。 | ||
| 修繕積立金 | 共用部分の修繕のために積立てる金額を表示。 | ||

新築一戸建住宅
| 価格 | 2,980 万円 | ||
|---|---|---|---|
| 間取り | 3LDK | 築年月(築年数) | 2025年 11月 (新築) |
| 建物面積 | 86.52㎡ | 土地面積 | 194.11㎡ |
| 住所 | 山梨県甲斐市富竹新田 | ||
| 交通 |
中央線「竜王」駅 徒歩28分
|
||
中古一戸建住宅
| 価格 |
値下げ:2025/04/21 3,280 万円 | ||
|---|---|---|---|
| 間取り | 3LDK | 築年月(築年数) | 2021年 10月 (築4年) |
| 建物面積 | 107.08㎡ | 土地面積 | 202.44㎡ |
| 住所 | 山梨県甲斐市龍地 | ||
| 交通 |
中央線「竜王」駅 徒歩35分
|
||
新築一戸建住宅
| 価格 | 3,750 万円 | ||
|---|---|---|---|
| 間取り | 3LDK | 築年月(築年数) | 2026年 4月予定 (建築中) |
| 建物面積 | 121.31㎡ | 土地面積 | 219.70㎡ |
| 住所 | 山梨県甲斐市竜王 | ||
| 交通 |
中央線「竜王」駅 徒歩33分 身延線「国母」駅 徒歩44分 中央線「甲府」駅 徒歩51分 |
||
【外観】