中古一戸建住宅
「利回り」は、当該不動産の1年間の予定賃料収入の不動産取得対価に対する割合であり、公租公課その他当該物件を維持するために必要な費用の控除前のものです。
また、予定賃料収入が確実に得られる事を保証するものではありません。

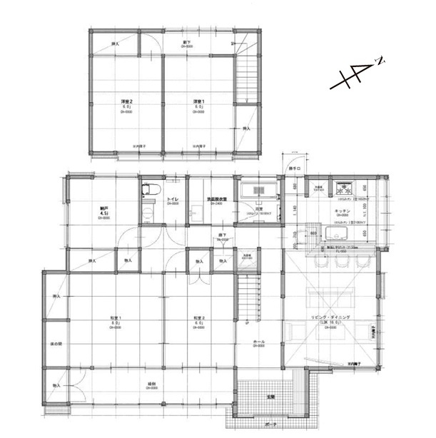
4LDKSの中古再生住宅です。
緑あふれる広大な敷地内の水路(池)には、カニやめだかが生息しています。
部屋数が多く、各居室収納付きで4.5帖の納戸あり、大きなものもたっぷり収納可能!
内外装リフォーム工事済み後のお引渡しになります。

※地図上の物件位置は近隣に物件が所在することを表すものであり、実際の物件所在地とは異なる場合がございます。
0120-800-955
営業時間:10:00~18:00 / 定休日:水曜日
| 所在地 | 山梨県南巨摩郡南部町大和 | ||
|---|---|---|---|
| 交通 |
身延線 「内船」駅
徒歩28分 バス5分 大和(山梨県)下車 徒歩1分 身延線 「寄畑」駅 徒歩54分 バス5分 大和(山梨県)下車 徒歩1分 |
||
| 価格 | 1,680万円 | ||
| 間取り |
4LDK+S(納戸)
LDK 16.0帖 1室 / 和室 8.0帖 1室 / 和室 6.0帖 1室 / 和室 4.5帖 1室 / 洋室 6.0帖 2室 / |
||
| 築年月(築年数) | 1975年 6月(築50年) | 主要採光面 | |
| 建物構造 | 木造 | 階数 | 2階建 |
| 私道負担面積 | セットバック | ||
| 接道状況 | 一方 (南東側 公道3.2m) | ||
| 建ぺい率/容積率 | / | 土地権利 | 所有権 |
| 地目 | 宅地 | 地勢 | 平坦 |
| 土地の権利形態 | |||
| 都市計画 | 都市計画区域外 | 用途地域 | |
| その他法令上の制限 | |||
| 国土法届出 | 不要 | 取引態様 | 仲介 |
| 現況 | 空家 | 引渡し | 相談 |
| リフォーム | 内装リフォーム:2026年2月完成予定、 外装リフォーム:2026年2月完成予定 | ||
| 駐車場 | 空き台数:5台 、 有 | ||
| 設備条件 | 公営水道 / プロパンガス / 陽当り良好 / リフォーム / ファミリー向け / 室内洗濯機置場 / フローリング / 電気有 / ガスコンロ / 対面式キッチン / バス・トイレ別 / 洗面台 / 浴室1坪以上 / 独立洗面台 / 食品庫 | ||
| その他条件 | |||
| 備考 |
学区:町立睦合小学校、町立南部中学校 ※現在リフォーム工事中、敷地内・室内の内覧可能 |
||
| 周辺の学校 | |||
| 物件番号 | 103411147 | ||
| 情報公開日 | 2026年4月19日 | 次回更新予定日 | 2026年5月3日 |
| 取引条件の有効期限 | 2026年5月3日 | ||
| 取扱い会社 |
LIXIL不動産ショップ 株式会社プライムホーム 〒400-0047 山梨県甲府市徳行3丁目4-24 山梨県知事(3)第2321号 (公社)山梨県宅地建物取引業協会(公社)全国宅地建物取引業保証協会(公社)首都圏不動産公正取引協議会 |
||
0120-800-955
営業時間:10:00~18:00 / 定休日:水曜日
| 所在地 | 物件の住所を表示。(詳細住所は表示していない場合もある) | ||
|---|---|---|---|
| 交通 | 物件(部屋)の沿線駅・バス停を表示。(複数駅・バス停の利用が可能な場合は最大3件まで) | ||
| 間取り/詳細 | 数字は居室数を表示。LDKはそれぞれ「リビング」「ダイニング」「キッチン」、S(納戸)とは「納戸」「サービスルーム」「マルチルーム」「フリールーム」など建築基準法第28条に適合していないため、居室と認められない納戸その他の部分を表す。 | ||
| 価格 | 販売されている住戸の価格を表示。仲介手数料は含まない。 | ||
| 管理費 | 共同住宅の設備その他共用部分の維持および管理をするために必要な費用を表示。 | ||
| 修繕積立金 | 共用部分の修繕のために積立てる金額を表示。 | ||

【外観】