中古一戸建住宅
「利回り」は、当該不動産の1年間の予定賃料収入の不動産取得対価に対する割合であり、公租公課その他当該物件を維持するために必要な費用の控除前のものです。
また、予定賃料収入が確実に得られる事を保証するものではありません。

小学校・中学校が近く、子育て世帯に人気のエリアに立地した築浅物件。南向きで陽当たり良好、10坪以上のゆとりある庭付きです。オール電化仕様で家計にもやさしく、エアコン2台設置済みのため入居後すぐ快適な暮らしを始められます。

※地図上の物件位置は近隣に物件が所在することを表すものであり、実際の物件所在地とは異なる場合がございます。
0120-800-955
営業時間:10:00~18:00 / 定休日:水曜日
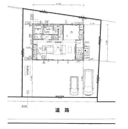
| 所在地 | 山梨県中巨摩郡昭和町押越 | ||
|---|---|---|---|
| 交通 |
身延線 「常永」駅
徒歩20分 身延線 「国母」駅 徒歩28分 身延線 「小井川」駅 徒歩43分 |
||
| 価格 | 3,500万円 | ||
| 間取り |
4LDK
|
||
| 築年月(築年数) | 2023年 2月(築3年) | 主要採光面 | 南 |
| 建物構造 | 木造 | 階数 | 2階建 |
| 私道負担面積 | セットバック | ||
| 接道状況 | 一方 (南西側 公道4.0m) | ||
| 建ぺい率/容積率 | 60%/ 200% | 土地権利 | 所有権 |
| 地目 | 宅地 | 地勢 | 平坦 |
| 土地の権利形態 | |||
| 都市計画 | 市街化調整区域 | 用途地域 | 指定なし |
| その他法令上の制限 | |||
| 国土法届出 | 不要 | 取引態様 | 仲介 |
| 現況 | 空家 | 引渡し | 相談 |
| リフォーム | |||
| 駐車場 | 空き台数:3台 、 有 | ||
| 設備条件 | 浄化槽 / 公営水道 / 閑静な住宅地 / 陽当り良好 / ルーフバルコニー / 照明器具付き / IHクッキングヒーター / コンロ2口以上 / 食器洗い乾燥機 / システムキッチン / コンロ3口 / 追焚機能浴室 / 浴室乾燥機 / 温水洗浄便座 / トイレ2ヶ所 / 浴室1坪以上 / 床下収納 / ウォークインクロゼット / 収納豊富 / TVモニタ付インターホン / 複層ガラス / ディンプルキー | ||
| その他条件 | |||
| 備考 |
押原小学校・押原中学校、学区。 他所在地:押原小学校西260m 施工会社:オプトホーム 建築確認完了検査済証あり、増改築時の設計図書あり |
||
| 周辺の学校 | 昭和町立押原小学校(約507m / 徒歩7分) | ||
| 物件番号 | 100761267 | ||
| 情報公開日 | 2026年4月11日 | 次回更新予定日 | 2026年4月25日 |
| 取引条件の有効期限 | 2026年4月25日 | ||
| 取扱い会社 |
LIXIL不動産ショップ 株式会社プライムホーム 〒400-0047 山梨県甲府市徳行3丁目4-24 山梨県知事(3)第2321号 (公社)山梨県宅地建物取引業協会(公社)全国宅地建物取引業保証協会(公社)首都圏不動産公正取引協議会 |
||
0120-800-955
営業時間:10:00~18:00 / 定休日:水曜日
| 所在地 | 物件の住所を表示。(詳細住所は表示していない場合もある) | ||
|---|---|---|---|
| 交通 | 物件(部屋)の沿線駅・バス停を表示。(複数駅・バス停の利用が可能な場合は最大3件まで) | ||
| 間取り/詳細 | 数字は居室数を表示。LDKはそれぞれ「リビング」「ダイニング」「キッチン」、S(納戸)とは「納戸」「サービスルーム」「マルチルーム」「フリールーム」など建築基準法第28条に適合していないため、居室と認められない納戸その他の部分を表す。 | ||
| 価格 | 販売されている住戸の価格を表示。仲介手数料は含まない。 | ||
| 管理費 | 共同住宅の設備その他共用部分の維持および管理をするために必要な費用を表示。 | ||
| 修繕積立金 | 共用部分の修繕のために積立てる金額を表示。 | ||

新築一戸建住宅
| 価格 | 3,180 万円 | ||
|---|---|---|---|
| 間取り | 4LDK | 築年月(築年数) | 2026年 4月 (建築中) |
| 建物面積 | 80.31㎡ | 土地面積 | 205.54㎡ |
| 住所 | 山梨県中巨摩郡昭和町築地新居 | ||
| 交通 |
身延線「常永」駅 徒歩21分
|
||
中古一戸建住宅
| 価格 | 3,380 万円 | ||
|---|---|---|---|
| 間取り | 4LDK | 築年月(築年数) | 2022年 6月 (築3年) |
| 建物面積 | 98.82㎡ | 土地面積 | 211.72㎡ |
| 住所 | 山梨県中巨摩郡昭和町築地新居 | ||
| 交通 |
身延線「常永」駅 徒歩20分
|
||
新築一戸建住宅
| 価格 | 3,680 万円 ~ 3,780 万円 | ||
|---|---|---|---|
| 間取り | 4LDK ~ 4LDK+S(納戸) | 築年月(築年数) | 2025年 11月 (新築) |
| 建物面積 | 115.10㎡ ~ 119.65㎡ | 土地面積 | 201.10㎡ ~ 215.24㎡ |
| 住所 | 山梨県中巨摩郡昭和町西条 | ||
| 交通 |
身延線「国母」駅 徒歩27分
|
||
【外観】