マンション
「利回り」は、当該不動産の1年間の予定賃料収入の不動産取得対価に対する割合であり、公租公課その他当該物件を維持するために必要な費用の控除前のものです。
また、予定賃料収入が確実に得られる事を保証するものではありません。

オーナーチェンジ物件!想定利回り8.83%!5LDK中古戸建付きの一棟売りマンション!周辺施設が豊富で生活利便が良好な立地♪イオンモール甲府昭和まで車約4分!

※地図上の物件位置は近隣に物件が所在することを表すものであり、実際の物件所在地とは異なる場合がございます。
0120-800-955
営業時間:10:00~18:00 / 定休日:水曜日
| 所在地 | 山梨県中巨摩郡昭和町河西 | ||
|---|---|---|---|
| 交通 | 身延線 「常永」駅 徒歩16分 | ||
| 価格 | 7,500万円 | 表面利回り | |
| 想定年間収入 | 築年月(築年数) | 1997年 3月(築28年) | |
| 階数 | 3階建 | ||
| 建物面積 | 608.67㎡ | 土地面積 | 1058.11㎡ |
| 建ぺい率/容積率 | 50%/ 80% | 建物構造 | 鉄骨造 |
| 土地権利 | 所有権 | 地目 | 宅地 |
| 土地の権利形態 | |||
| 用途地域 | 第二種低層住居専用地域 | 都市計画 | 市街化区域 |
| 建築確認番号 | 国土法届出 | 不要 | |
| 接道状況 | 角地 (北側 公道4.7m) (西側 公道4.0m) | 私道負担面積 | |
| 現況 | 賃貸中 | 引渡し | 相談 |
| 駐車場 | |||
| 設備条件 | 陽当り良好 | ||
| その他条件 | |||
| 備考 |
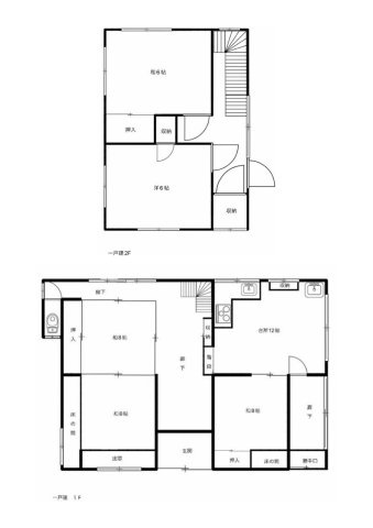
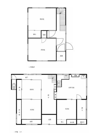
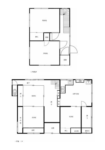
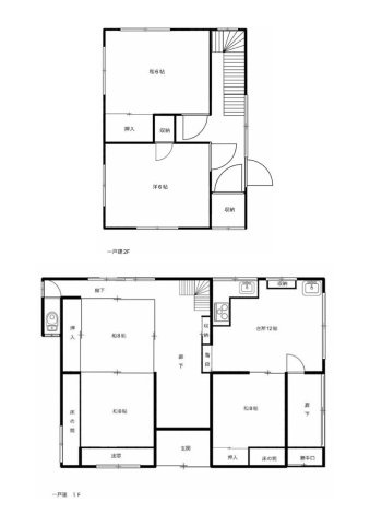
常永小学校・押原中学校、学区。 【マンション】12部屋2LDK(洋8・洋8・LDK8帖)。車1台駐車場込。隣地を駐車場として借用(車7台駐車21,000/月)。満室想定時収入589,000円/月(現在11部屋入居中)。 【中古戸建】木・コンクリートブロック造瓦葺屋根2階建5LDK。昭和63年母屋1F和8・和8、2F洋6・和6築。昭和45年キッチン10帖築。 【付属建物】コンクリートブロック造陸屋根平屋建(和6・浴室・S50年築)。現在空家。 ※図面と現況が異なる場合、現況を優先とします。 |
||
| 取引態様 | 仲介 | 物件番号 | 91325490 |
| 情報公開日 | 2025年11月11日 | 次回更新予定日 | 2025年11月25日 |
| 取引条件の有効期限 | 2025年11月25日 | ||
| 取扱い会社 |
LIXIL不動産ショップ 株式会社プライムホーム 〒400-0047 山梨県甲府市徳行3丁目4-24 山梨県知事(3)第2321号 (公社)山梨県宅地建物取引業協会(公社)全国宅地建物取引業保証協会(公社)首都圏不動産公正取引協議会 |
||
0120-800-955
営業時間:10:00~18:00 / 定休日:水曜日
| 所在地 | 物件の住所を表示。(詳細住所は表示していない場合もある) | ||
|---|---|---|---|
| 交通 | 物件(部屋)の沿線駅・バス停を表示。(複数駅・バス停の利用が可能な場合は最大3件まで) | ||
| 間取り/詳細 | 数字は居室数を表示。LDKはそれぞれ「リビング」「ダイニング」「キッチン」、S(納戸)とは「納戸」「サービスルーム」「マルチルーム」「フリールーム」など建築基準法第28条に適合していないため、居室と認められない納戸その他の部分を表す。 | ||
| 価格 | 販売されている住戸の価格を表示。仲介手数料は含まない。 | ||
| 管理費 | 共同住宅の設備その他共用部分の維持および管理をするために必要な費用を表示。 | ||
| 修繕積立金 | 共用部分の修繕のために積立てる金額を表示。 | ||

【外観】