中古マンション
| 価格 |
590万円 | 交通 | 中央線 「石和温泉」駅 徒歩16分 |
|---|---|---|---|
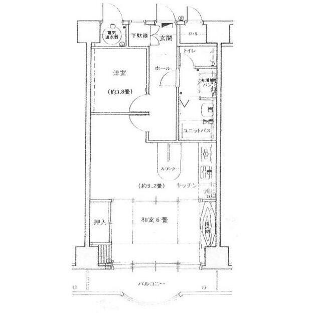
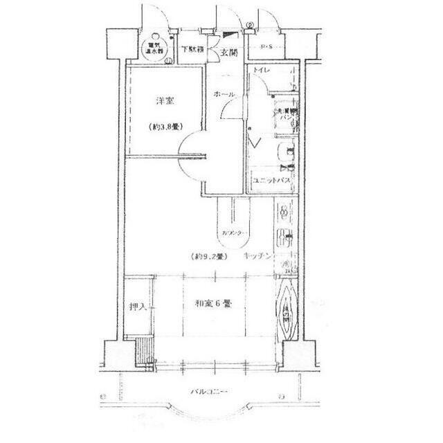
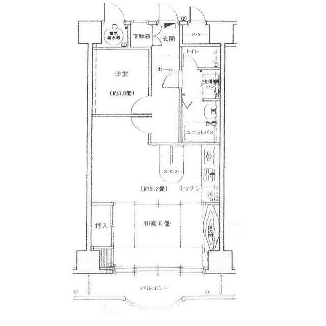
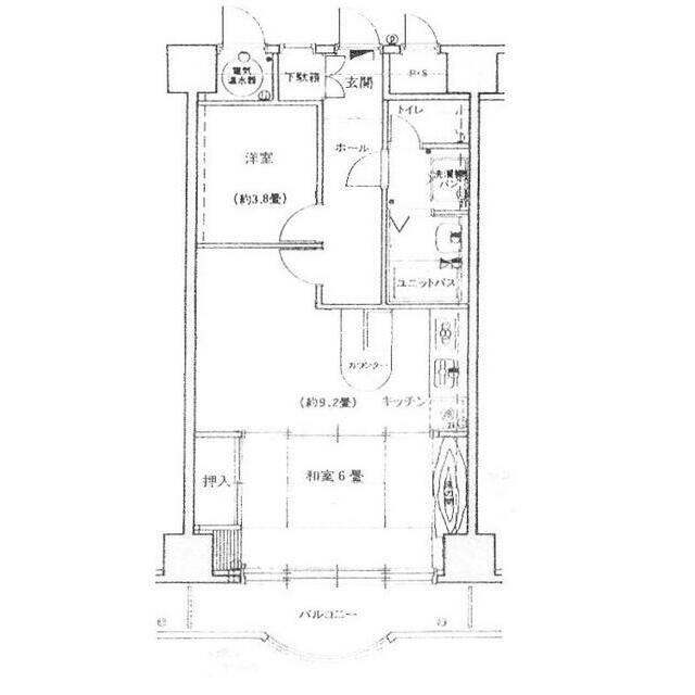
| 間取り | 2DK | 所在地 | 山梨県笛吹市石和町八田 22-1 |
| 専有面積 | 50.49㎡ | 築年月(築年数) | 1989年 7月 (築36年) |
「利回り」は、当該不動産の1年間の予定賃料収入の不動産取得対価に対する割合であり、公租公課その他当該物件を維持するために必要な費用の控除前のものです。
また、予定賃料収入が確実に得られる事を保証するものではありません。

8階建ての5階部分。南向きで陽当り良好。男女温泉大浴場。屋外プール(夏季のみ)。管理人常駐。ローソン 春日居鎮目店まで徒歩約10分。

※地図上の物件位置は近隣に物件が所在することを表すものであり、実際の物件所在地とは異なる場合がございます。
0120-800-955
営業時間:10:00~18:00 / 定休日:水曜日
| 所在地 | 山梨県笛吹市石和町八田 22-1 | ||
|---|---|---|---|
| 交通 | 中央線 「石和温泉」駅 徒歩16分 | ||
| 価格 | 590万円 | 管理費 | 22,100円 |
| 修繕積立金 | 8,800円 | 修繕積立基金 | |
| 所在階/階数 | 5階 / 8階建 | 築年月(築年数) | 1989年 7月(築36年) |
| 専有面積 | 50.49㎡ | バルコニー面積 | 7.30㎡ |
| 建物構造 | 鉄骨鉄筋コンクリート(SRC) | 主要採光面 | 南 |
| 間取り |
2DK
DK 9.2帖 1室 / 和室 6.0帖 1室 / 洋室 3.8帖 1室 / |
||
| リフォーム | |||
| 引渡し | 相談 | ||
| 管理 | 管理形態:管理会社に全部委託、 管理員の勤務形態:日勤 | ||
| 土地権利 | 所有権 | 用途地域 | 第一種住居地域 |
| 土地の権利形態 | |||
| 駐車場 | 空有、月額料金:3,000円(非課税) | ||
| 設備条件 | 公共下水 / 公営水道 / カードキー / エアコン / オートロック | ||
| その他条件 | |||
| 備考 | 石和北小学校・石和中学校、学区。 | ||
| 周辺の学校 | 笛吹市立石和北小学校(約911m / 徒歩12分)、笛吹市立石和中学校(約3,354m / 徒歩42分) | ||
| 取引態様 | 仲介 | 物件番号 | 89289715 |
| 情報公開日 | 2025年12月7日 | 次回更新予定日 | 2025年12月21日 |
| 取引条件の有効期限 | 2025年12月21日 | ||
| 取扱い会社 |
LIXIL不動産ショップ 株式会社プライムホーム 〒400-0047 山梨県甲府市徳行3丁目4-24 山梨県知事(3)第2321号 (公社)山梨県宅地建物取引業協会(公社)全国宅地建物取引業保証協会(公社)首都圏不動産公正取引協議会 |
||
0120-800-955
営業時間:10:00~18:00 / 定休日:水曜日
| 所在地 | 物件の住所を表示。(詳細住所は表示していない場合もある) | ||
|---|---|---|---|
| 交通 | 物件(部屋)の沿線駅・バス停を表示。(複数駅・バス停の利用が可能な場合は最大3件まで) | ||
| 間取り/詳細 | 数字は居室数を表示。LDKはそれぞれ「リビング」「ダイニング」「キッチン」、S(納戸)とは「納戸」「サービスルーム」「マルチルーム」「フリールーム」など建築基準法第28条に適合していないため、居室と認められない納戸その他の部分を表す。 | ||
| 価格 | 販売されている住戸の価格を表示。仲介手数料は含まない。 | ||
| 管理費 | 共同住宅の設備その他共用部分の維持および管理をするために必要な費用を表示。 | ||
| 修繕積立金 | 共用部分の修繕のために積立てる金額を表示。 | ||

【外観】