店舗
| 価格 |
7,500万円 | 築年月(築年数) | 1990年 3月 (築35年) |
|---|---|---|---|
| 所在地 | 山梨県甲府市里吉4丁目 | 交通 |
身延線 「南甲府」駅
徒歩16分 里吉三丁目バス停下車 徒歩5分 |
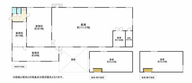
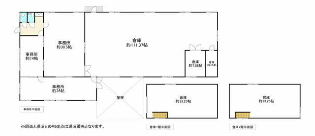
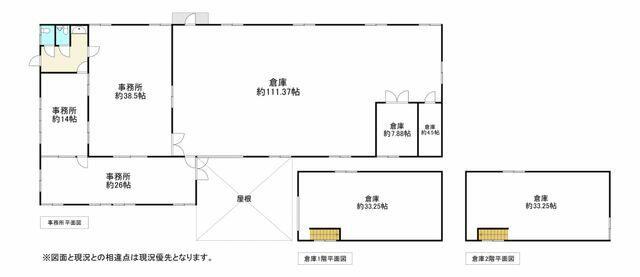
| 建物面積/坪数 | 331.83㎡ / 100.37坪 | 土地面積/坪数 | 1238.00㎡ / 374.49坪 |
「利回り」は、当該不動産の1年間の予定賃料収入の不動産取得対価に対する割合であり、公租公課その他当該物件を維持するために必要な費用の控除前のものです。
また、予定賃料収入が確実に得られる事を保証するものではありません。

甲府バイパス付近にある事業向け物件!事務所・倉庫付き!交通利便良好な立地♪周辺施設が豊富な立地♪業務スーパー里吉店まで徒歩約6分!
※地図上の物件位置は近隣に物件が所在することを表すものであり、実際の物件所在地とは異なる場合がございます。
0120-800-955
営業時間:10:00~18:00 / 定休日:水曜日
| 所在地 | 山梨県甲府市里吉4丁目 | ||
|---|---|---|---|
| 交通 |
身延線 「南甲府」駅
徒歩16分 里吉三丁目バス停下車 徒歩5分 |
||
| 価格 | 7,500万円 | ||
| 築年月(築年数) | 1990年 3月(築35年) | 主要採光面 | |
| 建物構造 | 鉄骨造 | 階数 | 1階建 |
| 私道負担面積 | セットバック | ||
| 建物面積 | 331.83㎡ | 土地面積 | 1238.00㎡ |
| 接道状況 | 角地 (西側 公道6.0m) (北側 公道4.6m) | ||
| 建ぺい率/容積率 | 60%/ 200% | 土地権利 | 所有権 |
| 地目 | 宅地 | 地勢 | 平坦 |
| 土地の権利形態 | |||
| 都市計画 | 市街化区域 | 用途地域 | 準工業地域 |
| その他法令上の制限 | |||
| 国土法届出 | 不要 | 取引態様 | 仲介 |
| 現況 | 居住中 | 引渡し | 相談 |
| 駐車場 | 空き台数:3台 、 空有 | ||
| 設備条件 | |||
| その他条件 | |||
| 備考 |
引き渡し:期日指定 2025年5月以降。 建物未登記部あり。引き渡しまでに登記完了予定。 |
||
| 周辺の学校 | 甲府市立南中学校(約1,528m / 徒歩20分) | ||
| 建築確認番号 | 物件番号 | 94971933 | |
| 情報公開日 | 2026年1月19日 | 次回更新予定日 | 2026年2月2日 |
| 取引条件の有効期限 | 2026年2月2日 | ||
| 取扱い会社 |
LIXIL不動産ショップ 株式会社プライムホーム 〒400-0047 山梨県甲府市徳行3丁目4-24 山梨県知事(3)第2321号 (公社)山梨県宅地建物取引業協会(公社)全国宅地建物取引業保証協会(公社)首都圏不動産公正取引協議会 |
||
0120-800-955
営業時間:10:00~18:00 / 定休日:水曜日
| 所在地 | 物件の住所を表示。(詳細住所は表示していない場合もある) | ||
|---|---|---|---|
| 交通 | 物件(部屋)の沿線駅・バス停を表示。(複数駅・バス停の利用が可能な場合は最大3件まで) | ||
| 間取り/詳細 | 数字は居室数を表示。LDKはそれぞれ「リビング」「ダイニング」「キッチン」、S(納戸)とは「納戸」「サービスルーム」「マルチルーム」「フリールーム」など建築基準法第28条に適合していないため、居室と認められない納戸その他の部分を表す。 | ||
| 価格 | 販売されている住戸の価格を表示。仲介手数料は含まない。 | ||
| 管理費 | 共同住宅の設備その他共用部分の維持および管理をするために必要な費用を表示。 | ||
| 修繕積立金 | 共用部分の修繕のために積立てる金額を表示。 | ||

【外観】