中古一戸建住宅
| 価格 |
値下げ:2025/11/28 2,880万円 | 交通 | 中央線 「酒折」駅 徒歩16分 |
|---|---|---|---|
| 間取り | 5LDK | 所在地 | 山梨県甲府市国玉町 |
| 建物面積/坪数 | 181.35㎡ / 54.85坪 | 土地面積/坪数 | 280.66㎡ / 84.89坪 |
「利回り」は、当該不動産の1年間の予定賃料収入の不動産取得対価に対する割合であり、公租公課その他当該物件を維持するために必要な費用の控除前のものです。
また、予定賃料収入が確実に得られる事を保証するものではありません。

閑静な住宅街にある広々5LDK。全居室エアコン完備。屋根裏部屋有り。生活利便。駐車スペース3台可。バロー 国玉店まで車で約1分。ウエルシア 甲府和戸店まで車で約2分。

※地図上の物件位置は近隣に物件が所在することを表すものであり、実際の物件所在地とは異なる場合がございます。
0120-800-955
営業時間:10:00~18:00 / 定休日:水曜日
| 所在地 | 山梨県甲府市国玉町 | ||
|---|---|---|---|
| 交通 | 中央線 「酒折」駅 徒歩16分 | ||
| 価格 | 2,880万円 | ||
| 間取り |
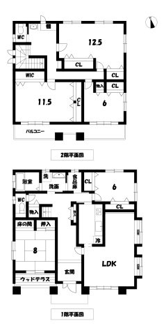
5LDK
LDK 12.5帖 1室 / 和室 8.0帖 1室 / 洋室 11.5帖 1室 / 洋室 6.0帖 2室 / |
||
| 築年月(築年数) | 2006年 1月(築20年) | 主要採光面 | |
| 建物構造 | 木造 | 階数 | 2階建 |
| 私道負担面積 | セットバック | ||
| 接道状況 | |||
| 建ぺい率/容積率 | 60%/ 200% | 土地権利 | 所有権 |
| 地目 | 宅地 | 地勢 | |
| 土地の権利形態 | |||
| 都市計画 | 市街化調整区域 | 用途地域 | 指定なし |
| その他法令上の制限 | |||
| 国土法届出 | 不要 | 取引態様 | 仲介 |
| 現況 | 空家 | 引渡し | 相談 |
| リフォーム | |||
| 駐車場 | 空き台数:3台 、 有 | ||
| 設備条件 | 公共下水 / 公営水道 / 閑静な住宅地 / 電気有 / 照明器具付き / カウンターキッチン / 追焚機能浴室 / 浴室乾燥機 / 温水洗浄便座 / トイレ2ヶ所 / エアコン / 床暖房 / ウォークインクロゼット / TVモニタ付インターホン / 複層ガラス | ||
| その他条件 | |||
| 備考 | 玉諸小学校・東中学校、学区。 | ||
| 周辺の学校 | 玉諸小学校(約653m / 徒歩9分)、甲府市立東中学校(約2,757m / 徒歩35分) | ||
| 物件番号 | 83442365 | ||
| 情報公開日 | 2026年2月9日 | 次回更新予定日 | 2026年2月23日 |
| 取引条件の有効期限 | 2026年2月23日 | ||
| 取扱い会社 |
LIXIL不動産ショップ 株式会社プライムホーム 〒400-0047 山梨県甲府市徳行3丁目4-24 山梨県知事(3)第2321号 (公社)山梨県宅地建物取引業協会(公社)全国宅地建物取引業保証協会(公社)首都圏不動産公正取引協議会 |
||
0120-800-955
営業時間:10:00~18:00 / 定休日:水曜日
| 所在地 | 物件の住所を表示。(詳細住所は表示していない場合もある) | ||
|---|---|---|---|
| 交通 | 物件(部屋)の沿線駅・バス停を表示。(複数駅・バス停の利用が可能な場合は最大3件まで) | ||
| 間取り/詳細 | 数字は居室数を表示。LDKはそれぞれ「リビング」「ダイニング」「キッチン」、S(納戸)とは「納戸」「サービスルーム」「マルチルーム」「フリールーム」など建築基準法第28条に適合していないため、居室と認められない納戸その他の部分を表す。 | ||
| 価格 | 販売されている住戸の価格を表示。仲介手数料は含まない。 | ||
| 管理費 | 共同住宅の設備その他共用部分の維持および管理をするために必要な費用を表示。 | ||
| 修繕積立金 | 共用部分の修繕のために積立てる金額を表示。 | ||

中古一戸建住宅
| 価格 | 2,999 万円 | ||
|---|---|---|---|
| 間取り | 5LDK | 築年月(築年数) | 1993年 3月 (築32年) |
| 建物面積 | 140.47㎡ | 土地面積 | 567.46㎡ |
| 住所 | 山梨県甲府市国母4丁目 | ||
| 交通 |
身延線「国母」駅 徒歩17分
|
||
【外観】