新築一戸建住宅 分譲

中巨摩郡昭和町西条 新築戸建

外観

【外観】

価格

3,680万円 ~ 3,780万円

交通 身延線 「国母」駅 徒歩27分
五本杉バス停下車 徒歩10分
間取り 4LDK ~ 4LDK+S(納戸) 所在地 山梨県中巨摩郡昭和町西条
建物面積/坪数 115.10㎡ ~ 119.65㎡ / 34.81坪 ~ 36.19坪 土地面積/坪数 201.10㎡ ~ 215.24㎡ / 60.83坪 ~ 65.1坪

利回りとは

「利回り」は、当該不動産の1年間の予定賃料収入の不動産取得対価に対する割合であり、公租公課その他当該物件を維持するために必要な費用の控除前のものです。
また、予定賃料収入が確実に得られる事を保証するものではありません。

×

販売情報(3件)

販売中 1号棟

1 / 30

外観

【外観】

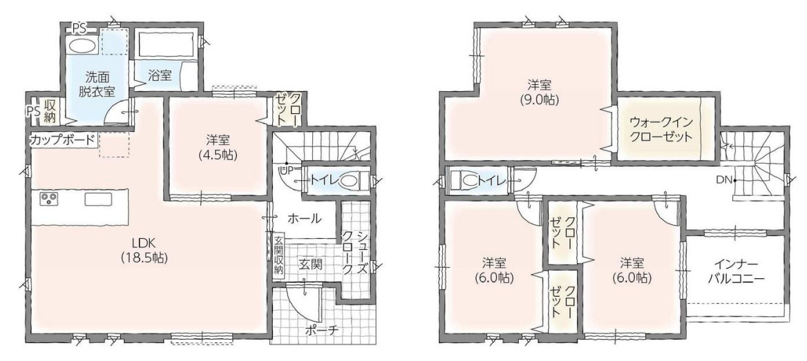
間取り

【間取り】

居間・リビング

【居間・リビング】

居間・リビング

【居間・リビング】

居間・リビング

【居間・リビング】

居間・リビング

【居間・リビング】

キッチン

【キッチン】

キッチン

【キッチン】

浴室

【浴室】

洗面所

【洗面所】

トイレ

【トイレ】1F

洋室

【洋室】

洋室

【洋室】

洋室

【洋室】

洋室

【洋室】

洋室

【洋室】

バルコニー

【バルコニー】

トイレ

【トイレ】2F

収納

【収納】

内装

【内装】

内装

【内装】

玄関

【玄関】

玄関

【玄関】

駐車場

【駐車場】

区画図

【区画図】

外観

【外観】

外観

【外観】

外観

【外観】

外観

【外観】

外観

【外観】

外観 間取り 居間・リビング 居間・リビング 居間・リビング 居間・リビング キッチン キッチン 浴室 洗面所 トイレ 洋室 洋室 洋室 洋室 洋室 バルコニー トイレ 収納 内装 内装 玄関 玄関 駐車場 区画図 外観 外観 外観 外観 外観

情報公開日:2026年4月11日 / 次回更新予定日:2026年4月25日

価格 3,730 万円
間取り 4LDK
築年月 2025年 11月
階数 2階建
建物面積/坪数 115.10㎡/34.81坪
土地面積/坪数 215.24㎡/65.1坪
私道負担面積
土地の権利形態
引渡し 相談
取引態様 仲介
間取り詳細 LDK 18.5帖 1室
洋室 4.5帖 1室
洋室 9.0帖 1室
洋室 6.0帖 2室

設備条件

フローリング   /   バルコニー   /   インナーバルコニー   /   システムキッチン   /   対面式キッチン   /   バス・トイレ別   /   浴室乾燥機   /   温水洗浄便座   /   トイレ2ヶ所   /   エアコン   /   ウォークインクロゼット   /   TVモニタ付インターホン   /  

駐車場

有 、 空き台数:3台

販売中 2号棟

1 / 30

外観

【外観】

間取り

【間取り】

居間・リビング

【居間・リビング】完成予想図

居間・リビング

【居間・リビング】

居間・リビング

【居間・リビング】

居間・リビング

【居間・リビング】

キッチン

【キッチン】

キッチン

【キッチン】

浴室

【浴室】

浴室

【浴室】

洗面所

【洗面所】

洗面所

【洗面所】

トイレ

【トイレ】1F

洋室

【洋室】

洋室

【洋室】

洋室

【洋室】

洋室

【洋室】

洋室

【洋室】

バルコニー

【バルコニー】

収納

【収納】

内装

【内装】

内装

【内装】

内装

【内装】

玄関

【玄関】

玄関

【玄関】

駐車場

【駐車場】

区画図

【区画図】

外観

【外観】

外観

【外観】

外観

【外観】

外観 間取り 居間・リビング 居間・リビング 居間・リビング 居間・リビング キッチン キッチン 浴室 浴室 洗面所 洗面所 トイレ 洋室 洋室 洋室 洋室 洋室 バルコニー 収納 内装 内装 内装 玄関 玄関 駐車場 区画図 外観 外観 外観

情報公開日:2026年4月11日 / 次回更新予定日:2026年4月25日

価格 3,680 万円
間取り 4LDK+S(納戸)
築年月 2025年 11月
階数 2階建
建物面積/坪数 116.75㎡/35.31坪
土地面積/坪数 201.29㎡/60.88坪
私道負担面積
土地の権利形態
引渡し 相談
取引態様 仲介
間取り詳細 LDK 18.0帖 1室
洋室 4.5帖 1室
洋室 8.0帖 1室
洋室 6.0帖 2室

設備条件

フローリング   /   バルコニー   /   インナーバルコニー   /   システムキッチン   /   対面式キッチン   /   バス・トイレ別   /   浴室乾燥機   /   温水洗浄便座   /   トイレ2ヶ所   /   エアコン   /   ウォークインクロゼット   /   TVモニタ付インターホン   /  

駐車場

有 、 空き台数:3台

販売中 3号棟

1 / 36

外観

【外観】

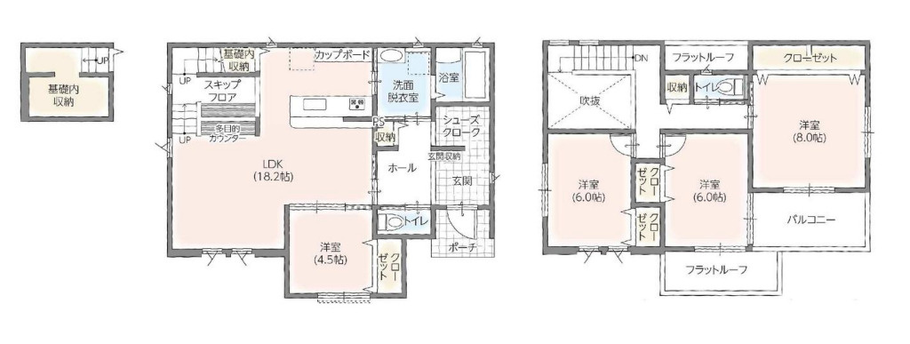
間取り

【間取り】

居間・リビング

【居間・リビング】

居間・リビング

【居間・リビング】

居間・リビング

【居間・リビング】

居間・リビング

【居間・リビング】

居間・リビング

【居間・リビング】

キッチン

【キッチン】

キッチン

【キッチン】完成予想図

浴室

【浴室】

浴室

【浴室】

洗面所

【洗面所】

洗面所

【洗面所】

トイレ

【トイレ】1F

洋室

【洋室】

洋室

【洋室】

洋室

【洋室】

洋室

【洋室】

洋室

【洋室】

洋室

【洋室】

バルコニー

【バルコニー】

トイレ

【トイレ】2F

内装

【内装】

内装

【内装】

内装

【内装】

内装

【内装】

収納

【収納】

収納

【収納】

玄関

【玄関】

玄関

【玄関】

駐車場

【駐車場】

区画図

【区画図】

外観

【外観】

外観

【外観】

外観

【外観】

外観

【外観】

外観 間取り 居間・リビング 居間・リビング 居間・リビング 居間・リビング 居間・リビング キッチン キッチン 浴室 浴室 洗面所 洗面所 トイレ 洋室 洋室 洋室 洋室 洋室 洋室 バルコニー トイレ 内装 内装 内装 内装 収納 収納 玄関 玄関 駐車場 区画図 外観 外観 外観 外観

情報公開日:2026年4月12日 / 次回更新予定日:2026年4月25日

価格 3,780 万円
間取り 4LDK
築年月 2025年 11月
階数 2階建
建物面積/坪数 119.65㎡/36.19坪
土地面積/坪数 201.10㎡/60.83坪
私道負担面積
土地の権利形態
引渡し 相談
取引態様 仲介
間取り詳細 LDK 18.2帖 1室
洋室 4.5帖 1室
洋室 8.0帖 1室
洋室 6.0帖 2室

設備条件

フローリング   /   バルコニー   /   インナーバルコニー   /   システムキッチン   /   対面式キッチン   /   バス・トイレ別   /   浴室乾燥機   /   温水洗浄便座   /   トイレ2ヶ所   /   エアコン   /   ウォークインクロゼット   /   TVモニタ付インターホン   /  

駐車場

有 、 空き台数:3台

地図

※地図上の物件位置は近隣に物件が所在することを表すものであり、実際の物件所在地とは異なる場合がございます。

周辺施設(20件)

  • クスリのアオキ 西条新田店
    約648m / 徒歩9分
    クスリのアオキ 西条新田店
  •  昭和町立西条小学校
    約1,050m / 徒歩14分
    昭和町立西条小学校
  • 昭和町立押原中学校
    約1,380m / 徒歩18分
    昭和町立押原中学校
  • 押原公園
    約1,305m / 徒歩17分
    押原公園
  • 玉川温泉
    約1,431m / 徒歩18分
    玉川温泉
  • ICHIYAMA MART(いちやまマート) 竜王アルプス通り店
    約894m / 徒歩12分
    ICHIYAMA MART(いちやまマート) 竜王アルプス通り店
  • トライアル甲府昭和店
    約1,035m / 徒歩13分
    トライアル甲府昭和店
  • ユニクロ甲斐アルプス通り店
    約1,027m / 徒歩13分
    ユニクロ甲斐アルプス通り店
  • セブンイレブン 昭和バイパス店
    約1,035m / 徒歩13分
    セブンイレブン 昭和バイパス店
  • セブンイレブン 昭和西条店
    約1,236m / 徒歩16分
    セブンイレブン 昭和西条店
  • イトーヨーカドー 甲府昭和店
    約1,508m / 徒歩19分
    イトーヨーカドー 甲府昭和店
  •  イオンモール甲府昭和
    約2,061m / 徒歩26分
    イオンモール甲府昭和
  • 業務スーパー甲府昭和店
    約1,410m / 徒歩18分
    業務スーパー甲府昭和店
  •  玉幡公園 総合屋内プール
    約1,631m / 徒歩21分
    玉幡公園 総合屋内プール
  • ココス 甲府昭和店
    約1,960m / 徒歩25分
    ココス 甲府昭和店
  • スシロー 甲府昭和店
    約1,770m / 徒歩23分
    スシロー 甲府昭和店
  • カインズFC甲府昭和店
    約1,582m / 徒歩20分
    カインズFC甲府昭和店
  • クスリのサンロード竜王店
    約1,808m / 徒歩23分
    クスリのサンロード竜王店
  • 甲府昭和IC
    約1,632m / 徒歩21分
    甲府昭和IC
  •  玉幡郵便局
    約1,832m / 徒歩23分
    玉幡郵便局

営業時間:10:00~18:00 / 定休日:水曜日

中巨摩郡昭和町西条 新築戸建の物件詳細

所在地 山梨県中巨摩郡昭和町西条
交通 身延線 「国母」駅 徒歩27分
五本杉バス停下車 徒歩10分
価格 3,680万円 ~ 3,780万円 間取り 4LDK ~ 4LDK+S(納戸)
総戸数 3戸 販売戸数 1戸
建物構造 木造
建ぺい率/容積率 60%/ 200% 土地権利 所有権
地目 宅地 地勢
土地の権利形態
都市計画 市街化調整区域 用途地域 指定なし
その他法令上の制限
国土法届出 不要
設備条件 公共下水 / 公営水道 / プロパンガス
備考
周辺の学校 昭和町立西条小学校(約1,050m / 徒歩14分)
建築確認番号 第2025確認建築静建住ま03078号 物件番号 96802721
取扱い会社 LIXIL不動産ショップ 株式会社プライムホーム
〒400-0047
山梨県甲府市徳行3丁目4-24
山梨県知事(3)第2321号
(公社)山梨県宅地建物取引業協会(公社)全国宅地建物取引業保証協会(公社)首都圏不動産公正取引協議会

情報の見方

営業時間:10:00~18:00 / 定休日:水曜日

情報の見方

所在地 物件の住所を表示。(詳細住所は表示していない場合もある)
交通 物件(部屋)の沿線駅・バス停を表示。(複数駅・バス停の利用が可能な場合は最大3件まで)
間取り/詳細 数字は居室数を表示。LDKはそれぞれ「リビング」「ダイニング」「キッチン」、S(納戸)とは「納戸」「サービスルーム」「マルチルーム」「フリールーム」など建築基準法第28条に適合していないため、居室と認められない納戸その他の部分を表す。
価格 販売されている住戸の価格を表示。仲介手数料は含まない。
管理費 共同住宅の設備その他共用部分の維持および管理をするために必要な費用を表示。
修繕積立金 共用部分の修繕のために積立てる金額を表示。
×

類似物件

新築一戸建住宅

中巨摩郡昭和町築地新居 新築戸建

価格 3,180 万円
間取り 4LDK 築年月(築年数) 2026年 4月 (建築中)
建物面積 80.31㎡ 土地面積 205.54㎡
住所 山梨県中巨摩郡昭和町築地新居
交通

身延線常永」駅 徒歩21分

中古一戸建住宅

中巨摩郡昭和町築地新居 中古戸建

価格 3,380 万円
間取り 4LDK 築年月(築年数) 2022年 6月 (築3年)
建物面積 98.82㎡ 土地面積 211.72㎡
住所 山梨県中巨摩郡昭和町築地新居
交通

身延線常永」駅 徒歩20分

中古一戸建住宅

中巨摩郡昭和町押越 中古戸建

価格 3,500 万円
間取り 4LDK 築年月(築年数) 2023年 2月 (築3年)
建物面積 105.98㎡ 土地面積 200.85㎡
住所 山梨県中巨摩郡昭和町押越
交通

身延線常永」駅 徒歩20分

身延線国母」駅 徒歩28分

身延線小井川」駅 徒歩43分